agnin
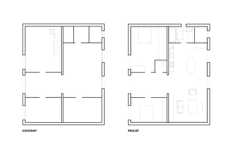
transformation d’un garage en appartement
lieu
Salaise-sur-Sanne (38)
livraison
2022
superficie 110 m2
maîtrise d’ouvrage
privé
intervention
architecture
spécificité
logement locatif PMR
mission
conception & permis de construire
coût
NC




